SUN LAKE VIEW
Project Highlights
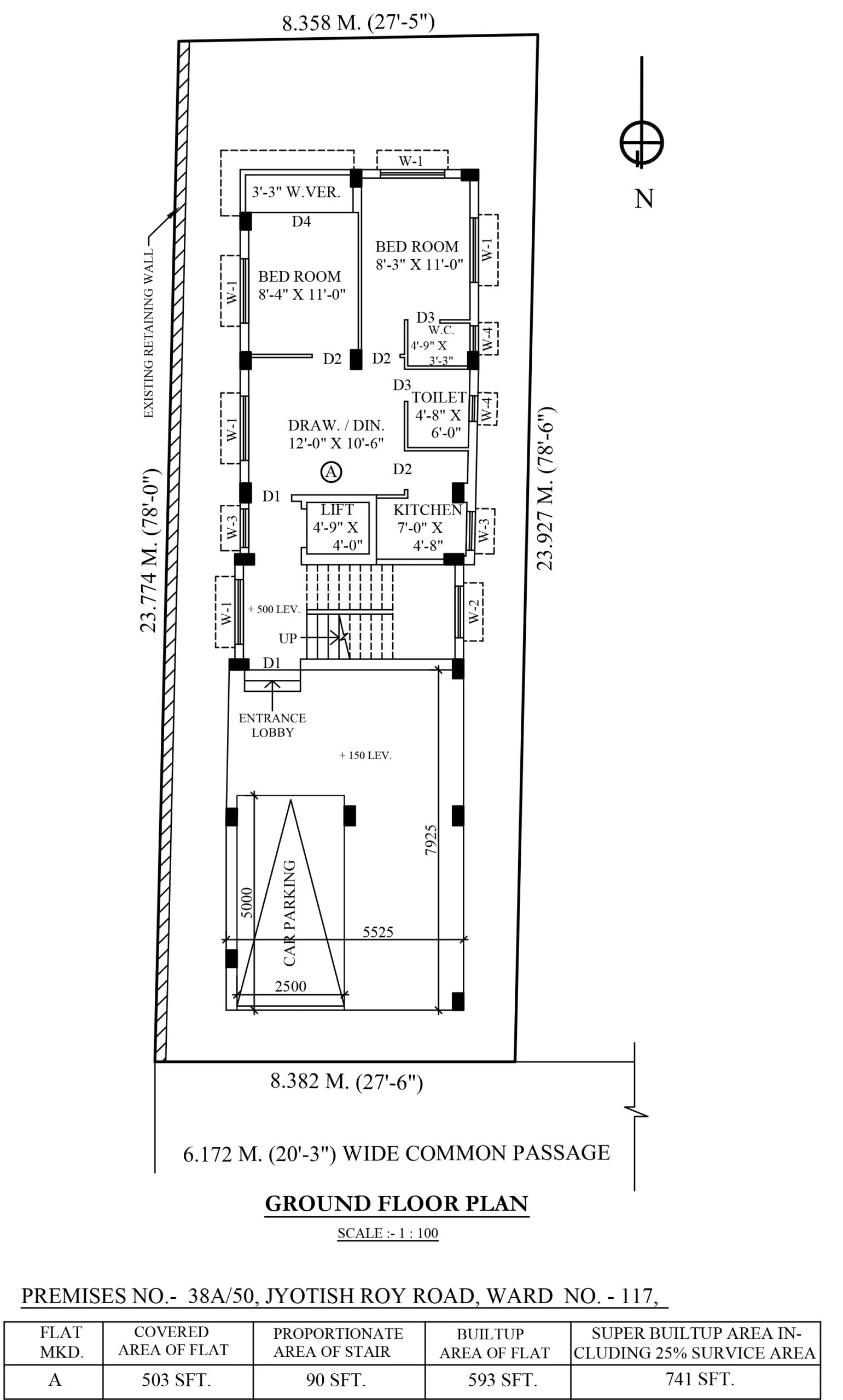
SUN LAKE VIEW is one of the better Residential Project overlooking Natural Beauty. The project is conveniently situated Jyotish Roy Road, New alipore. The project is having almost 3 side open with ample open space. Location : 38A/50 Jyotish Roy Road, New alipore, Kolkata 700053.
- Total Land Area: 3 Kathas
- Number of Blocks:1
- Number of Lifts:1
- Building Heights:G + 3
- Type of Building:Standalone
- Ground Floor: Car parking
- Residential / Commercial: Residential
- Possession Date: Ready to move
- RERA:NA
- Total No. of Flats:Sold out
- No. of Flats Available:Sold out
- Type of Flooring:Vitrified Tiles
- Type of Window:Aluminum Sliding
- Type of Door:Flush Door
- Sources of Water Supply:KMC
- Super Built up Area:25%
- Size of Flats:2 BHK 722 & 741 sqft.
- Power Supply: No


